Bauleitplanverfahren
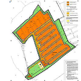
Aufstellung des Bebauungsplanes Nr. 95b - Das Bruch - Bereich Campingplatz Rusche/In den Stämmen 6 -

Aufstellung des Bebauungsplanes Nr. 95b - Das Bruch - Bereich Campingplatz Rusche/In den Stämmen 6 -

Seit den 1980er Jahren bietet der Campingplatz Rusche ein Freizeitangebot zur touristischen Wochenend- und Ferienerholung im südöstlichen Randbereich des Erholungsgebietes Die Haard. Durch die reizvolle Lage am Rand des Ruhrgebiets besitzt die Stadt Datteln ein Tourismuspotenzial, das durch den Campingplatz gestärkt wird. Um die planungsrechtlichen Voraussetzungen für eine dauerhafte Sicherung des Campingplatzes herzustellen, hat der Rat der Stadt Datteln 2012 beschlossen, den Bebauungsplan Nr. 95b - Das Bruch - aufzustellen.

Bebauungsplan - Das BruchDie frühzeitige Beteiligung der Öffentlichkeit gemäß § 3 Absatz 1 des Baugesetzbuches ist im August 2020 durchgeführt worden.

Als nächsten Verfahrensschritt hat der Haupt-, Finanz- und Wirtschaftsausschuss am 17.3.2021 beschlossen, den Entwurf und die Begründung mit Umweltbericht zu billigen und gemäß § 3 Abs.2 BauGB für die Dauer eines Monats öffentlich auszulegen. Während dieser Auslegung können Stellungnahmen abgegeben werden.

Die Entwurfsunterlagen zum Bebauungsplan Nr. 95b mit der Begründung einschließlich Umweltbericht, die Fachgutachten und die bereits vorliegenden umweltbezogenen Stellungnahmen liegen in der Zeit vom

30.8.2021 bis einschließlich zum 29.9.2021

öffentlich aus im Rathaus der Stadt Datteln, Genthiner Straße 8, Zimmer 2.24 (Fachdienst 6.1 Stadtplanung/ Bauordnung - Bereich Stadtplanung) während der Dienststunden der Stadtverwaltung

montags und mittwochs von 8.30 Uhr - 12.00 Uhr und von 14.00 - 16.00 Uhr
donnerstags von 8.30 Uhr - 12.00 Uhr und von 14.00 Uhr - 17.00 Uhr
dienstags und freitags von 8.30 Uhr - 12.00 Uhr

Aufgrund der aktuellen Corona-Pandemie ist eine Einsicht in die ausgelegten Unterlagen nur nach Terminvereinbarung möglich. Zur Vereinbarung eines Termins wenden Sie sich bitte an:

Elisabeth Grote, Tel. 02363/107-340, E-Mail: elisabeth.grote@stadt-datteln.de oder
Michaela Peeters, Tel. 02363/107-278, E-Mail: michaela.peeters@stadt-datteln.de

Bei Bedarf ist auch ein Termin außerhalb der oben genannten Dienststunden der Stadtverwaltung möglich.

Stellungnahmen können Sie während der Auslegungsfrist bei der Stadt Datteln einreichen:

  • schriftlich an: Stadt Datteln, Fachbereich 6: Stadtplanung und Bauordnung, Genthiner Straße 8, 45711 Datteln
  • mündlich zur Niederschrift in Raum 2.24, II.OG, Rathaus Datteln, Genthiner Straße 8, 45711 Datteln, innerhalb der oben genannten Dienststunden nach Terminvereinbarung,
  • per E-Mail: anregungen@stadt-datteln.de
  • per Fax an: 02363/107-442

Nicht fristgerecht abgegebene Stellungnahmen können gemäß § 3 Abs.2 Halbsatz 2 BauGB bei der Beschlussfassung über den Bauleitplan unberücksichtigt bleiben.

Die Unterlagen zur Beteiligung der Öffentlichkeit werden ebenfalls vom 30.8.2021 bis einschließlich 29.9.2021 im Internet zur Einsicht und Stellungnahme zur Verfügung gestellt.

Folgende Unterlagen stehen für Sie zum Herunterladen bereit:

  1. Übersichtsplan (PDF; ca. 0,5 MB)
  2. Bebauungsplan Nr. 95b - Das Bruch - Bereich Campingplatz Rusche/In den Stämmen 6 (Entwurf) (PDF; ca. 1 MB)
  3. Begründung zum Bebauungsplan Nr. 95a mit Umweltbericht (Entwurf) (PDF; ca. 0,8 MB)
  4. Landschaftspflegerischer Begleitplan mit integrierter Artenschutzprüfung zum Bebauungsplan Nr. 95b - Das Bruch - Bereich Campingplatz Rusche/In den Stämmen 6 - Beitrag (PDF; ca. 5,4 MB) - Plan Bestand (PDF; ca. 1,8 MB) - Planung (PDF; ca. 0,4 MB)
  5. Stellungnahme Brandschutz zum Bebauungsplan Nr. 95b - Das Bruch - (PDF; ca. 13 MB)
  6. Stellungnahmen aus der frühzeitigen Beteiligung der Öffentlichkeit (§ 3 Absatz 1 Baugesetzbuch) sowie der Behörden und sonstigen Träger öffentlicher Belange (§ 4 Absatz 1 Baugesetzbuch) - August bis September 2020 (PDF; ca. 1,9 MB)

Kontakt

Image
Das Bild zeigt einen Platzhalter als Kontaktperson.

Elisabeth Grote

Stadtplanung